- オール電化
- 対面キッチン
- IHクッキング
ヒーター - 風呂一坪以上
- 追炊機能付風呂
- シャンプー
ドレッサー - 温水洗浄便座
- エアコン
- サンルーム
- ウォークイン
クローゼット - トランクルーム
- TVドアホン
- オートロック
- メゾネット
- 2階以上
- 角部屋
- ペット可
- 県立看護大学生
- 金沢医科大学生
- リノベーション
- ネット無料
- 外国人向け
- 家電付き
- 住マイルポイント対象物件
月額費用
-
- 家賃
- 85,000円
-
- 共益費
- 5,000円
-
- 水道料
- 3,300円
- 合計
- 98,800円
- 駐車料は、契約区画数によって変動します。
契約時費用
-
- 敷金
- 85,000円
-
- 礼金
- 170,000円
-
- 仲介手数料(税込)
- 99,000円
-
- 家財保険料
- 要別途加入
-
- 保険料(1年間)
- 8,600円
-
- 初回保証料
- 29,640円
- 合計
- 392,240円
- 月の途中で入居された場合は、その月の家賃は日割り計算になります。
- 別途、消費税がかかる項目があります。
- 仲介手数料は、駐車場の契約区画数によって変動します。
- 上記仲介手数料は家賃と駐車場1区画分で計算しています。
月額・契約時費用とも、あくまでも目安の金額です。詳しくはお問い合わせください。
建物情報
-
- 所在地
- 金沢市桂町ハ3
-
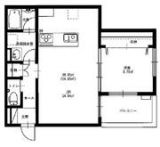
- 間取り
- 1LDK
-
- 間取り詳細
- LDK14、洋室6、テラス
-
- 専有面積
- 49.69m2
-
- 築年月
-
新築
-
- 構造
- 木造
-
- 部屋階/建物階
- 1階/3階建
-
- 向き
- 南東
-
- 設備
- 対面キッチン、IHクッキングヒーター、システムキッチン、バス・トイレ別、温水暖房洗浄便座、追い焚き、浴室乾燥機、洗面化粧台、室内洗濯機置場、エアコン、シューズボックス、照明器具付、TVドアホン、テラス、角部屋、駐輪場、オートロック、防犯カメラ、宅配ボックス
-
- 備考
- ※法人契約の場合、敷金2ヵ月
※ペット飼育の際は、敷金2ヵ月と退去時に消毒・消臭費用で3万円かかります。
※(賃貸保証会社:日本賃貸保証(株)(トリオTrust)、初回保証料賃料の30%、月々1.5%)
契約時情報
-
- 入居時期
- 即日
-
- 敷金
- 1ヶ月
-
- 礼金
- 2ヶ月
-
- 取引形態
- 仲介
-
- 仲介手数料
- (家賃+駐車料金)+消費税
-
- 家財保険
- 別途加入必要
-
- 契約期間
- 2年
-
- 更新事務手数料
- 新賃料1ヶ月+消費税
周辺環境
-
- 最寄り駅
- JR北陸本線 金沢駅
-
- 小学校
- 金石町小学校 900m
-
- 中学校
- 金石中学校 1,000m
-
- コンビニ
- セブン-イレブン 金沢桂町店 550m
-
- スーパー
- バロー木曳野店 800m
-
- 病院
- 金沢西みなとクリニック 1,300m
-
- その他
- ウエルシア金沢木曳野店 550m





















おすすめポイント
☆新築☆ペット可物件☆宅配ボックス付き!
スーパー、コンビニ、ドラッグストアも徒歩圏内!!IHクッキングヒーターなど設備も充実してます◎オートロック&TVドアホンで防犯面も安心です♪