
- オール電化
- 対面キッチン
- IHクッキング
ヒーター - 風呂一坪以上
- 追炊機能付風呂
- シャンプー
ドレッサー - 温水洗浄便座
- エアコン
- サンルーム
- ウォークイン
クローゼット - トランクルーム
- TVドアホン
- オートロック
- メゾネット
- 2階以上
- 角部屋
- ペット可
- 県立看護大学生
- 金沢医科大学生
- リノベーション
- ネット無料
- 外国人向け
- 家電付き
- 住マイルポイント対象物件
月額費用
-
- 家賃
- 60,000円
-
- 共益費
- 4,000円
-
- 駐車料
2,500円(非課税)
- 2台目2,500円
-
- ライフサポート(税込)
- 1,100円
- 合計
- 67,600円
- 駐車料は、契約区画数によって変動します。
契約時費用
-
- 敷金
- 0円
-
- 礼金
- 30,000円
-
- 仲介手数料(税込)
- 68,750円
-
- 家財保険料
- 22,000円
-
- 鍵交換費用(税込)※上のみ
- 13,200円
-
- 退去時清掃費用
- 66,000円
-
- 初回保証料
- 20,280円
- 合計
- 220,230円
- 月の途中で入居された場合は、その月の家賃は日割り計算になります。
- 別途、消費税がかかる項目があります。
- 仲介手数料は、駐車場の契約区画数によって変動します。
- 上記仲介手数料は家賃と駐車場1区画分で計算しています。
月額・契約時費用とも、あくまでも目安の金額です。詳しくはお問い合わせください。
建物情報
-
- 所在地
- かほく市遠塚ロ22-1
-
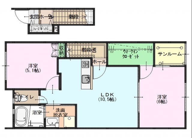
- 間取り
- 2LDK
-
- 間取り詳細
- 洋室5.1、洋室6、LDK10.8、ウォークインクローゼット、サンルーム
-
- 専有面積
- 51.34m2
-
- 築年月
- 築7年
-
- 構造
- 木造
-
- 部屋階/建物階
- 2階/2階建
-
- 向き
- 南
-
- 設備
- 対面キッチン、IHクッキングヒーター、バス・トイレ別、温水暖房洗浄便座、追い焚き、洗面化粧台、シャンプードレッサー、室内洗濯機置場、エアコン2基、ウォークインクローゼット、シューズボックス、照明器具付、TVドアホン、サンルーム、2階以上、トランクルーム、駐輪場、BS
-
- 備考
- ※保証会社加入必須(契約時保証料:賃料等の30%(最低保証料1.5万円)、月額手数料:賃料等の1%かかります)連帯保証人は不要です。
※鍵交換費:上下の場合22,000円(税込)かかります。
契約時情報
-
- 入居時期
- 2025年12月中旬
-
- 敷金
- 0ヶ月
-
- 礼金
- 0.5ヶ月
-
- 取引形態
- 代理
-
- 仲介手数料
- (家賃+駐車料金)+消費税
-
- 家財保険
- 加入必要 2年 22,000円
-
- 契約期間
- 2年
-
- 更新事務手数料
- 新賃料+1台目Pの0.5ヶ月(2台目Pは1ヶ月)+消費税
周辺環境
-
- 最寄り駅
- JR七尾線 横山駅 徒歩25分
-
- 小学校
- 七塚小学校 1,800m
-
- 中学校
- 河北台中学校 700m
-
- コンビニ
- ファミリーマート かほく七塚店 850m
-
- スーパー
- 大阪屋ショップ かほく店 2,100m
-
- 病院
- 紺谷医院 1,700m
-
- その他
- コスモス七塚店 350m
おすすめポイント
人気の対面キッチンでお料理も快適(^^♪サンルーム有でお洗濯も心配いらず!インターネット/wi-fi無料は魅力です(*^-^*)!大型ウォークインクローゼットで収納もたっぷり(^^♪☆閑静な住宅街で住みやすさ◎イオンモールかほくまで車で8分とお買い物にも便利!